



























| 物件タイプ | 住居 |
|---|---|
| 所在地 | 横浜市戸塚区上倉田町849-28 |
| 交通 | 横須賀線「戸塚」駅より徒歩15分 |
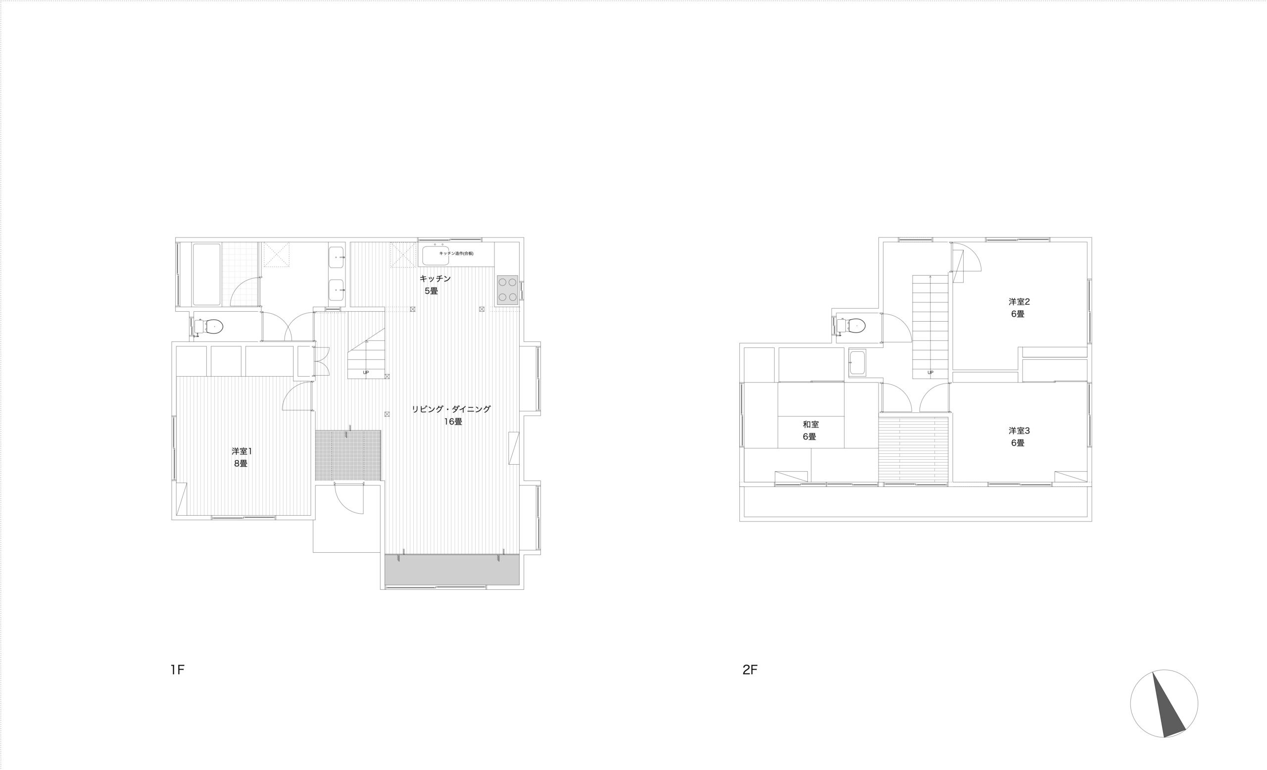
| 建物面積 | 118㎡ |
| 敷地面積 | 234.95㎡ |
| 土地権利 | 所有権 |
| 私道負担/ セットバック |
接道なし |
| 構造規模 | 木造2階建 |
| 築年 | 1979年(昭和54年) 3月 |
| 改装年月 | 2019年 : 1階リフォーム / 2026年 2月 :2階設備・表層替リフォーム |
| 用途地域 | 第一種中高層住居専用地域 |
| 建ぺい率/容積率 | 60% / 150% |
| 現況 | 空室 |
| 引渡 | 即可 |
| 販売価格 | 37,000,000円 |
|---|---|
| 仲介手数料 | 売買価格の3%+6万円+消費税 |
| 取引形態 | 専任 |
| その他 | ※駐車場なし |
| 設備 | エアコン5台/ガスコンロ4口/モニター付きインターホン |
| 備考 | ※一部掲載写真(1階部分)につきましては、2019年のリフォーム後に撮影したものとなります。また、写真内の家具は当時の入居中のものとなり、現在は撤去されております。 |
| 情報登録日 | 2026年03月31日 |
| 更新予定日 | 2026年5月1日 |
※掲載の情報が現状と異なる場合には、現状を優先するものとします。